Homes
Commercial
Portfolio
Floorplans
Start My Build
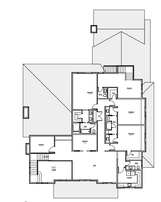
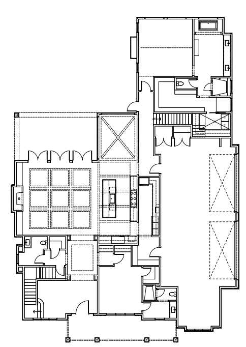
The Travertine
Floorplans
5,778
Square Feet
5
Bedrooms
7
Bathrooms
4 Car
Garages
Ready to Start Your Build?
"
*
" indicates required fields
Facebook
This field is for validation purposes and should be left unchanged.
First Name
*
Last Name
*
Phone
*
Email
*
Desired location
*
Your Budget
*
Please Select
500 - 750 sqft
750 - 1000 sqft
1000+ sqft
Do you have a designer?
*
Please Select
I have one
I need one
Tell us a little more about what you are looking for
CAPTCHA
Next Property