Homes
Commercial
Portfolio
Floorplans
Start My Build
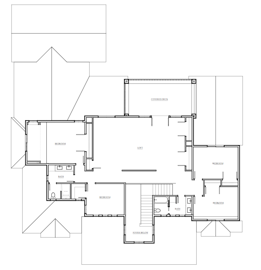
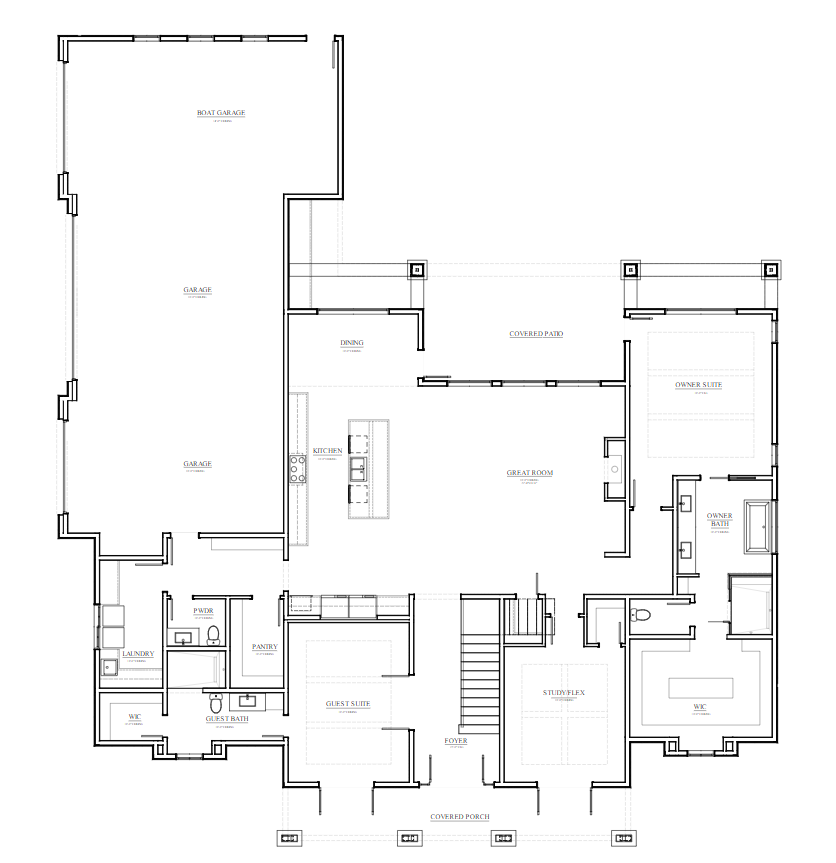
The Obsidian
Floorplans
5,268
Square Feet
7
Bedrooms
4.5
Bathrooms
3 Car + RV
Garages
Ready to Start Your Build?
"
*
" indicates required fields
Email
This field is for validation purposes and should be left unchanged.
First Name
*
Last Name
*
Phone
*
Email
*
Desired location
*
Your Budget
*
Please Select
500 - 750 sqft
750 - 1000 sqft
1000+ sqft
Do you have a designer?
*
Please Select
I have one
I need one
Tell us a little more about what you are looking for
CAPTCHA
Previous Property
Next Property